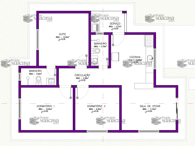
Área construída total de 78,82 m², 02 Quartos - 01 Suíte; Telhado de natureza Colonial; Jardim Exuberante; Sala com Boa Altura; Cozinha Conjugada; 01 Vaga de Garagem Descoberta.
PLANTAS DO PROJETO
Casa Cintra - 111
- Modelo: Casa Térrea
-
R$ 378,34
Projetos Complementares
Projetos Relacionados
Casa Colonial - 114
Área Térreo: 205,91m². Área Lazer e Serviço: 77,96m². 04 Suítes - 02 Closets. Telhado Clássico e A..
R$ 922,46








